
产品详情
一、用途
9-19型离心通风机,一般用于锻冶炉及高压强制通风,并可广泛用于输送物料、输送空气于无腐蚀性不自燃,不含粘性物质之气体。介质温度一般不超过50℃(最高不超过80℃),介质中所含尘土及硬质颗粒不大于150mg/m3。
二、 结构形式
本通风机为单吸入式,有NO4、4.5、5、5.6、6.3、7.1、8、9、10、11.2、12.5、14、16共13个机号。
通风机可制成右旋和左旋两种型式。从电动机一端正视,如叶轮顺时针旋转称右旋风机,以“右”表示;逆时针旋转称左旋风机,以“左”表示。
风机的出口位置以机壳的出口角度表示。“左”、“右”均可制成0°,45°,90°,135°,180°,225°共六种角度。
风机的传动方式为A式(NO4-6.3)和D式(NO7.1-16)两种。
三、结构特点
NO4-6.3主要由叶轮、机壳、进风口、支架等组成:NO7.1-16主要由叶轮、机壳、进风口、传动组等组成。
(1)叶轮:9-19型风机叶片为12片,9-26型风机叶片为16片。均属前向弯曲叶型。叶轮扩压器外缘最高圆周速度不超过140m/S。叶轮成型后经静、动平衡校正,帮运转平稳。
(2)机壳:用普通钢板焊接成蜗形壳整体。
(3)进风口:做成收敛式流线型的整体结构,用螺栓固定在前盖板组上。
(4)传动组:由主轴、轴承管、联轴器等组成,主轴由优质钢制成,轴质箱整体结构,采用球轴承,用轴承润滑脂润滑。
四、性能与选择
9-19型风机只给NO10样机的无因次性能表及曲线。由给出的无因次性能表或曲线计算NO10风机的有因次性能。

9-19型NO.10样机无因次性能曲线(上图)
当使用状态为非标准状态时,必须把非标准状态的性能换算到标准状态的性能,然后根据换算性能选择风机。
| 1 | 2 | 3 | 4 | 5 | 6 | | |
| φ | 0.03 | 0.037 | 0.044 | 0.051 | 0.058 | 0.065 | |
| ψ | 0.828 | 0.842 | 0.835 | 0.814 | 0.78 | 0.745 | |
| Ψb | 0.0478 | 0.0725 | 0.1025 | 0.1380 | 0.1793 | 0.2263 | |
| λ | 0.03247 | 0.0389 | 0.0451 | 0.05125 | 0.05785 | 0.065 | |
| ηm | 0.765 | 0.800 | 0.815 | 0.81 | 0.782 | 0.745 | |
电动机储备系数
| 轴功率/KW | <0.5 | >0.5~1 | >1~2 | >2~5 | >5 |
K | 1.5 | 1.4 | 1.3 | 1.2 | 1.15 |
产品参数
9-19 离心通风机性能与选用件表
| 机号 NO | 传动 | 转速 | 序 | 流量 | 全压 | 内 | 内功率 | 所需功率 | 电动机 | 橡胶垫 | 螺栓 | 螺母 | 垫圈 | |
型号 | 功率 | |||||||||||||
4 | A | 2900 | 1 | 824 | 3584 | 70 | 1.16 | 1.5 | Y90-2 | 2.2 | 11×70 | M8×40 | M8 | 8 |
Y100L-2 | 3 | 13×90 | M10×45 | M10 | 10 | |||||||||
4.5 | A | 2900 | 1 | 1174 | 4603 | 71.2 | 2.07 | 2.5 | Y112M-2 | 4 | 13×90 | M10×45 | N10 | 10 |
5 | A | 2900 | 1 | 1610 | 5697 | 72.7 | 3.43 | 4.1 | ||||||
Y132S2-2 | 7.5 | 13×90 | M10×45 | M10 | 10 | |||||||||
Y160M1-2 | 11 | 16×100 | M12×50 | M12 | 12 | |||||||||
5.6 | A | 2900 | 1 | 2262 | 7182 | 72.7 | 6.05 | 7.0 | 16×100 | M12×50 | M12 | 12 | ||
Y160M-2 | 11 | |||||||||||||
Y160L-2 | 18.5 | 16×100 | M12×50 | M12 | 12 | |||||||||
6.3 | A | 2900 | 1 | 3220 | 9149 | 72.7 | 10.91 | 12.5 | Y160L-2 | 18.5 | 16×100 | M12×50 | M12 | 12 |
Y200L1-2 | 30 | 20×100 | M16×60 | M16 | 16 | |||||||||







9-19系列NO4~6.3A离心通风机外形及安装尺寸图 (上图)
9-19系列NO4~6.3A离心通风机外形及安装尺寸表 (下表)



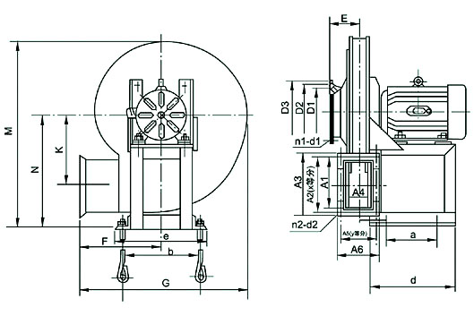
9-19 系列NO7.1~16D离心通风机外形及安装尺寸图 (上图)
9-19 系列NO7.1~16D离心通风机外形及安装尺寸表 (下表)


9-19系列NO7.1~16D离心通风机外形及安装尺寸表

通风机性能选用表
外形及安装尺寸表

苏公网安备 **************号